top of page
Heavenly Daffodils
Client:
Mr. Sudheer
Plot Area:
17 cents
Status:
On Going
Location:
Ulloor, Trivandrum, Kerala, India.
Built -up Area:
4500 sqft.
Year:
2020
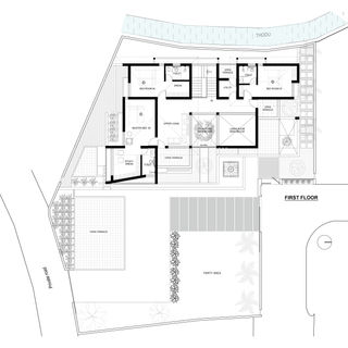
This residential project was designed with a core focus on creating private spaces while maintaining a sense of openness and continuity. Every window and opening expands into external courtyards sheltered within buffer walls adorned with intricate jali work. The thermal efficiency of the house was optimised through multiple design interventions including large overhangs, maximising openings towards the north and east while minimising openings to the south and west, a double-layered, shallow-sloped roof, and clerestory ventilation.
bottom of page









